住む RESIDENCE

売買居住用
東海村令7-2
- 希望価格
- 21,800,000円
- 所在地
- 舟石川駅西一丁目
- 利用状況
- 空き家
- 補修要否
- 都市計画の区域区分
- 市街化区域(一種低層)
- 住宅の耐震化
- 新耐震基準
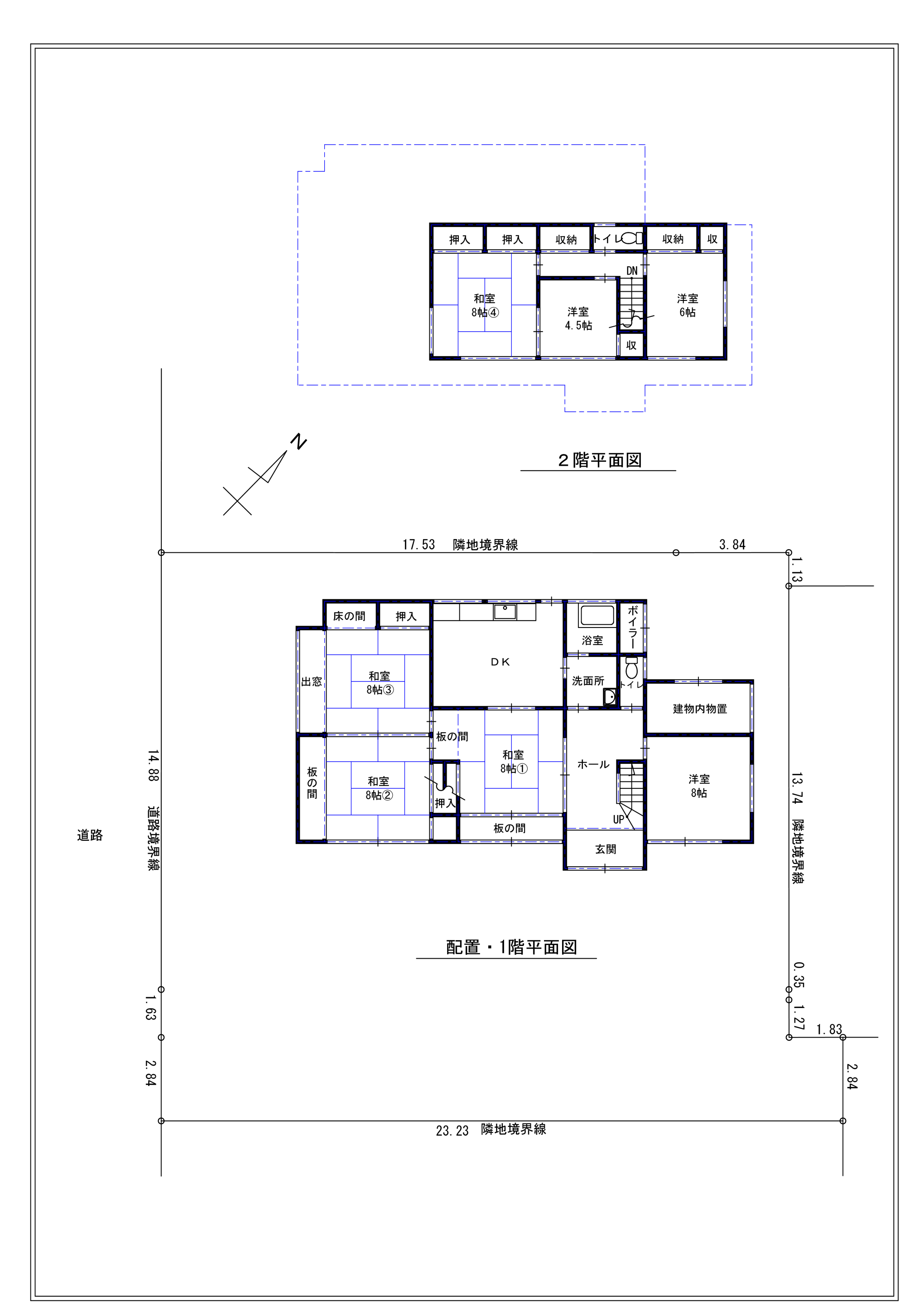
- 敷地面積
- 419.27㎡
- 建築年
- 1988
- 用途
- 住宅
- 構造
- 木造
- 延べ床面積
- 160.11㎡
- 間取り
- 7LDK
- 住宅の耐震化
- 新耐震基準
- 階数
- 2階建
設備状況
- 電気
- 工事不要
- ガス
- プロパンガス
- 給水
- 公営
- 排水
- 公共下水道
- 付帯設備
- 風呂
- 専用
- トイレ
- 専用
- 駐車スペース
- 空き有
- 庭
- 有
- ペット
- 可
周辺施設
- 主な周辺施設
-
- 役所
- 東海村役場 1.3km
- 消防署
- 東海消防署 1.0km
- 警察署
- 東海地区交番 0.4km
- 病院
- 東海病院 1.5km
- 郵便局
- 東海郵便局 1.0km
- 公民館
- 東海文化センター 0.9km
- 図書館
- 東海村立図書館 0.9km
- 電車・バス
-
- 電車
- 常磐線 「東海」 徒歩 0.4分
その他備考
・詳細は仲介業者による案内。
・購入希望者は村に申請書の提出が必要です。
お問い合わせ INQUIRY
この物件についてのお問い合わせは、下記の連絡先までお願いします。
「茨城県空き家バンク情報検索システム」のご利用にあたって
本ウェブサイトに掲載している物件の情報は、各市町村が提供する空き家情報を掲載しておりますが、掲載情報が現況と異なる場合がありますので、所在市町村担当課に問い合わせるなど、実際の状況を必ずご確認ください。いばらき移住・二地域居住推進協議会では、物件情報の提供や問い合わせ先のご案内をしておりますが、物件のあっせんや仲介は行っておりません。













